12月8日下午,在勘物楼B502举行了第三届“巧思妙绘·筑梦乡建”城乡规划专业学生优秀乡村建筑设计作品汇报会,国土空间规划与测绘专业群教研室主任刘赟老师及专业教师杨騏璟、付文静、和春兰、史鹏飞老师出席了汇报活动,此次汇报会聚焦于建筑初步设计课程的教学实践成果,为城乡规划专业的学生提供了展示学习成果与创新设计理念的舞台,为专业学习留下了下弥足珍贵的成长经验。活动还组织了25级城乡规划专业的新生们到现场观摩学习,活动现场气氛热烈。


汇报会上,来自24级城乡规划1班、2班的共22名学生们以个人形式展示了他们在课程期间完成的建筑初步设计作品,汇报现场,精美的设计图纸铺满桌面,立体模型细节满满,学生们借助多媒体演示,从外观造型的乡土元素提炼,到内部空间的功能分区规划,再到交通流线的人性化设计,每一个环节都展现出对乡村建筑需求的深度思考充分展现了学生们对不同建筑功能与空间需求的理解与探索。

评委老师们对学生们的作品给予了高度评价,肯定了他们在设计过程中展现出的专业素养、创新能力与团队协作精神。同时,评委们也针对每个作品的特点与不足之处提出了宝贵的意见和建议,鼓励学生们在今后的学习与实践中进一步深化对建筑设计的理解,不断提升设计水平与综合能力。
此次汇报会不仅是教学成果的展示,更是师生交流、城乡规划专业学生之间传、帮、带的生动课堂。25级城规专业大一新生也表示:“学长学姐们的作品让他们对乡村建筑设计有了更直观的认识,进一步激发了学习专业知识的热情,也更加期待未来的专业课程学习。”
汇报会尾声,刘赟老师作总结发言。“从这些作品中,我们看到了学生对乡村振兴的思考与担当。”他表示,建筑初步设计课程作为城乡规划专业的核心课程,始终以“实践育人”为导向,通过真实乡村场景的设计任务,让学生在理论学习中提升解决实际问题的能力。“未来,我们将继续深化教学改革,加强实践教学环节,为学生提供更多接触实际项目与行业前沿的机会,推动我校城乡规划专业教育教学质量的不断提升。”



本次汇报会的圆满举办,不仅充分展示了新葡8883官网AMG官网建筑初步设计课程的教学成果,更生动展现了同学们在创意设计类课程中蕴藏的潜力与才华,为城乡规划专业的教育教学工作注入了全新活力。相信在这类优质教学实践与交流活动的持续赋能下,城乡规划专业的学子们,必将以专业所长,在乡村规划与建筑设计的实践大展身手,绽放出更加耀眼的光彩!
其中优秀乡村民宿作品分别是:
溪山古驿(24级城规2班蔡杭先);
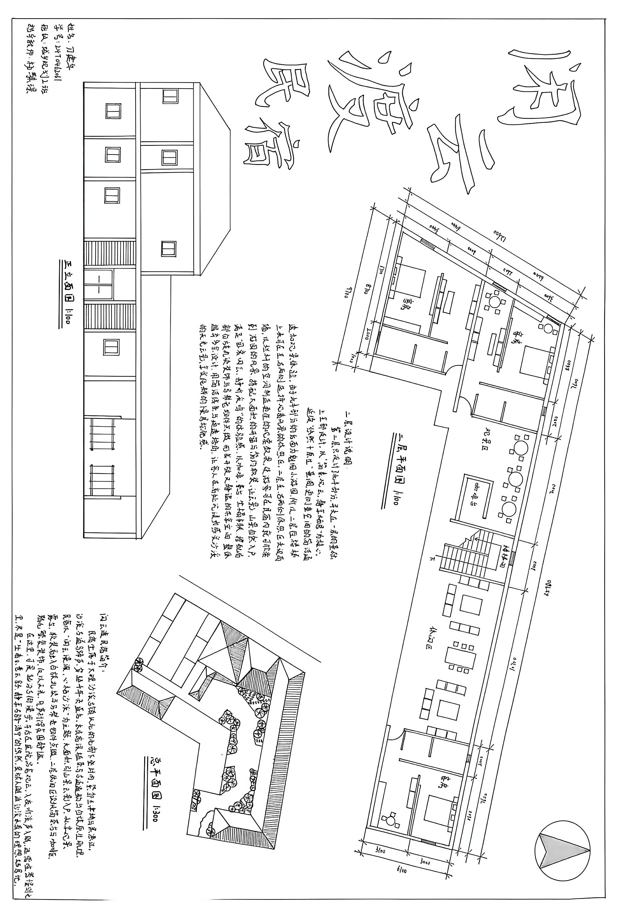
闲云渡(24级城规2班刀建华);
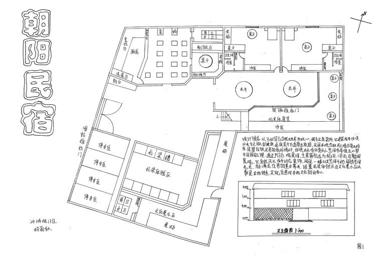
朝阳名宿(24级城规1班杨丽秋);
时光慢旅民宿(24级城规1班万应敏);
云栖小院(24级城规2班李杰);
玺梦栖宿(24级城规2班蔡安琪);
青禾坞(24级城规2班苏靖);
青屿小筑(24级城规2班何捷);
云溪雅宿(24级城规2班杨文芳);
临江驿(24级城规2班李西坤);
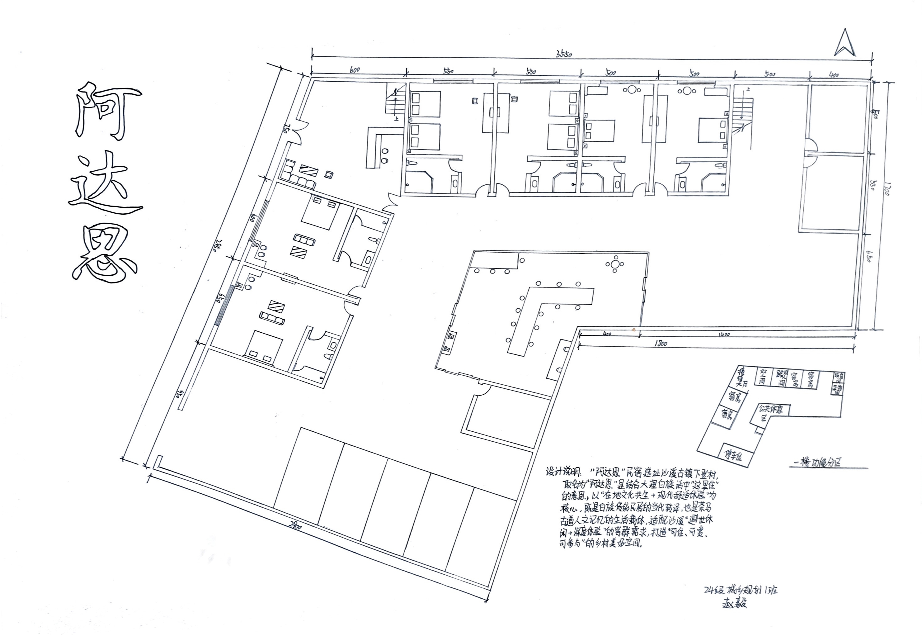
阿达思(24级城规1班赵毅);











优秀村民活动中心分别是:
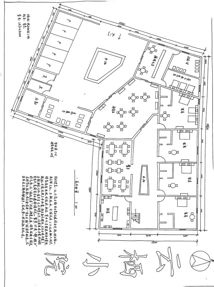
睦春坊(24城乡规划2班 解永琴);
村韵闲堂(24城乡规划2班 胡晓梅)
溪巷(24城乡规划1班 龚雪);
登苑(24城乡规划1班 刀露影);
繁花伊始(24城乡规划1班 范兰萍);
云栖草堂(24城乡规划2班 陈佳豪);
兰芷书苑(24城乡规划1班 李丽);
乡邻馨舍(24城乡规划1班 吴雪峰);
恬适村民文化活动中心(24城乡规划2班 张朝媛);
乡聚一堂(24城乡规划1班 玉香的);
丫韵阁(24城乡规划2班 麻薇);











